43

I've been unable to find a good reference for the size/amount/location of holes I can drill through joists. This is mostly in order to pass cabling or pipes through the joist crosswise. Also, what about notching the bottom, is there a size threshold there as well?

Aaron
  • 6,421
  • 7
  • 38
  • 60

1 Answers1

46

Have a look at this document for a quick reference. This type of thing will be covered by International Building Code (IBC) and International Residential Code (IRC)

IBC 2308.8.2 Framing details.

Joists shall be supported laterally at the ends and at each support by solid blocking except where the ends of the joists are nailed to a header, band or rim joist or to an adjoining stud or by other means. Solid blocking shall not be less than 2 inches (51mm) in thickness and the full depth of the joist. Notches on the ends of joists shall not exceed one-fourth the joist depth. Holes bored in joists shall not be within 2 inches (51 mm) of the top or bottom of the joist, and the diameter of any such hole shall not exceed one-third the depth of the joist. Notches in the top or bottom of joists shall not exceed one-sixth the depth and shall not be located in the middle third of the span.

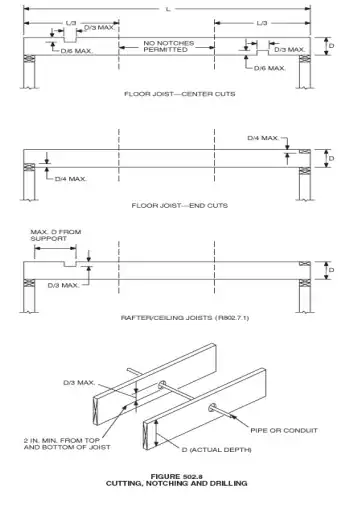
IRC R502.8 Drilling and notching.

Structural floor members shall not be cut, bored or notched in excess of the limitations specified in this section. See Figure R502.8.

enter image description here

IRC R502.8.1 Sawn lumber.

Notches in solid lumber joists, rafters and beams shall not exceed one-sixth of the depth of the member, shall not be longer than one-third of the depth of the member and shall not be located in the middle one-third of the span. Notches at the ends of the member shall not exceed one-fourth the depth of the member. The tension side of members 4 inches (102 mm) or greater in nominal thickness shall not be notched except at the ends of the members. The diameter of holes bored or cut into members shall not exceed one-third the depth of the member. Holes shall not be closer than 2 inches (51 mm) to the top or bottom of the member, or to any other hole located in the member. Where the member is also notched, the hole shall not be closer than 2 inches (51 mm) to the notch.

IRC R502.8.2 Engineered wood products.

Cuts, notches and holes bored in trusses, laminated veneer lumber, gluelaminated members or I-joists are not permitted unless the effects of such penetrations are specifically considered in the design of the member.

IRC R602.6 Drilling and notching - studs.

Any stud in an exterior wall or bearing partition may be cut or notched to a depth not exceeding 25 percent of its width. Studs in nonbearing partitions may be notched to a depth not to exceed 40 percent of a single stud width. Any stud may be bored or drilled, provided that the diameter of the resulting hole is no greater than 40 percent of the stud width, the edge of the hole is no closer than 5/8 inch (15.9 mm) to the edge of the stud, and the hole is not located in the same section as a cut or notch. See Figures R602.6(1) and R602.6(2).

Exceptions:

  1. A stud may be bored to a diameter not exceeding 60 percent of its width, provided that such studs located in exterior walls or bearing partitions are doubled and that not more than two successive studs are bored.

  2. Approved stud shoes may be used when installed in accordance with the manufacturers recommendation.

enter image description here

IRC R602.6.1 Drilling and notching of top plate.

When piping or ductwork is placed in or partly in an exterior wall or interi- or load-bearingwall, necessitating cutting, drilling or notching of the top plate by more than 50 percent of its width, a
galvanized metal tie of not less than 0.054 inches thick (1.37mm) (16ga) and 11/2 inches (38mm) wide shall be fastened to each plate across and to each side of the opening with not less than eight 16d nails at each side or equivalent. See Figure R602.6.1.

Exception: When the entire side of the wall with the notch or cut is covered by wood structural panel sheathing

IRC R802.7 Cutting and notching.

Structural roof members shall not be cut, bored or notched in excess of the limitations specified in this section.

IRC R802.7.1 Sawn lumber.

Notches in solid lumber joists, rafters and beams shall not exceed one-sixth of the depth of the member, shall not be longer than one-third of the depth of the member and shall not be located in the middle one-third of the span. Notches at the ends of the member shall not exceed one-fourth the depth of the member. The tension side of members 4 inches (102 mm) or greater in nominal thickness shall not be notched except at the ends of the members. The diameter of the holes bored or cut into members shall not exceed one-third the depth of the member. Holes shall not be closer than 2 inches (51mm) to the top or bottom of the member, or to any other hole located in the member. Where the member is also notched, the hole shall not be closer than inches (51 mm) to the notch.

Exception: Notches on cantilevered portions of rafters are permitted provided the dimension of the remaining portion of the rafter is not less than 4-inch nominal 102 mm) and the length of the cantilever does not exceed 24 inches (610mm).

IRC R802.7.2 Engineered wood products.

Cuts, notches and holes bored in trusses, structural composite lumber, structural glue-laminated members or I-joists are prohibited except where permitted by the manufacturer’s recommendations or where the effects of such alterations are specifically considered in the design of the member by a registered design professional.

enter image description here

Kevin Pullin
  • 105
  • 1
  • 1
  • 7
Tester101
  • 131,561
  • 78
  • 320
  • 610