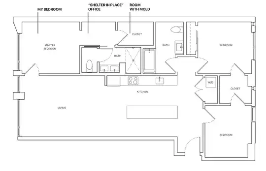
I bought my first place in December, five months ago. It's a new 3 bedroom, 2 bathroom condominium in San Francisco CA, and they finished construction in October 2019.
Over the last few days, other residents have been complaining about mold in the same position as my closet in the multi-story building. I decided to check my closet, and found a load of mold along the exterior of the wall. Some areas area more localized, where it follows the wall. In other areas, it's covered the items of clothing, such as my shoes.
- What should I do immediately about the mold? I'm worried about breathing in the mold, and unsure of whether I should try and save the items of clothing that have mold on them.
- What should I do in the medium-term? Do the builders have an obligation to address the root cause of the issue, and/or pay for damaged items?
Thank you in advance for any advice! I'm a little stressed out by it, so will very much appreciate it.
Edits –
Building description. 9 levels with 8 floors of condominiums, 4 to 6 on each floor. I am on the 4th floor. Some parts of the exterior are concrete.
New learnings: The room where this occurred is on the exterior of the building, where the exterior wall is concrete. I have since found out that the same unit in 3 floors above me and 1 unit below me have found mold in the same area of their units.
What's happened since: I agreed to let the building company arrange for a mold inspector to see the mold, and arrange for cleaners to remove the mold. When the inspectors arrived, they arrived with 3 others' from the building company. I didn't know one of them - they might have been a legal representative (they asked again for permission to enter our unit, and were particularly cautious). The unit above me decided against accepting their offer (to provide mold inspection and removal) on the advice of their legal advisor.
Current state: The cleaner who was sent by the building company removed all the visible mold from my unit, though they only wiped it off surfaces, and didn't check under the carpet etc. The carpet in that area is still damp. I put a dehumidifier and an air purifier in there, though the dehumidifier is pulling up about the same amount of water each day.
Short term ask: San Francisco is going to be in a 'shelter in place' situation for a while longer, so we cannot leave. I therefore need to fix this as quick as possible, even if I pay myself. I don't want to risk health issues due to the mold that has been growing about 10 feet away from my bed, and 5 feet from my desk. I therefore want to identify whether there are affordable solutions that reduce the health risk to me.
(added additional photos and illustrations below)

