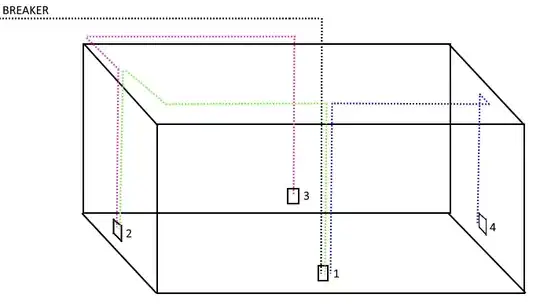
I had the following setup for a room, running on 15A breaker with 12/2
I wanted to add an outlet in the attic above this room so I did this:
There was enough slack in the wire, so I added the outlet in a plastic (blue) junction box and outlet using the existing wire from the breaker.
Should I have done it the way depicted in the image below? (Add yellow line)
The reason I didn't is because the junction box labeled '1' would have been overstuffed with wires, not to mention that I would have had to run an extra wire.
But I can't help but think I was supposed to do it this way.
Is what I did fine? I realize I should have asked prior...


