13

I bought my first place in December, five months ago. It's a new 3 bedroom, 2 bathroom condominium in San Francisco CA, and they finished construction in October 2019.

Over the last few days, other residents have been complaining about mold in the same position as my closet in the multi-story building. I decided to check my closet, and found a load of mold along the exterior of the wall. Some areas area more localized, where it follows the wall. In other areas, it's covered the items of clothing, such as my shoes.

  • What should I do immediately about the mold? I'm worried about breathing in the mold, and unsure of whether I should try and save the items of clothing that have mold on them.
  • What should I do in the medium-term? Do the builders have an obligation to address the root cause of the issue, and/or pay for damaged items?

Thank you in advance for any advice! I'm a little stressed out by it, so will very much appreciate it.

Edits –

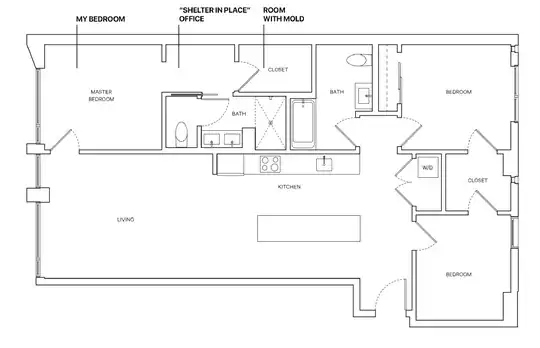
Building description. 9 levels with 8 floors of condominiums, 4 to 6 on each floor. I am on the 4th floor. Some parts of the exterior are concrete.

New learnings: The room where this occurred is on the exterior of the building, where the exterior wall is concrete. I have since found out that the same unit in 3 floors above me and 1 unit below me have found mold in the same area of their units.

What's happened since: I agreed to let the building company arrange for a mold inspector to see the mold, and arrange for cleaners to remove the mold. When the inspectors arrived, they arrived with 3 others' from the building company. I didn't know one of them - they might have been a legal representative (they asked again for permission to enter our unit, and were particularly cautious). The unit above me decided against accepting their offer (to provide mold inspection and removal) on the advice of their legal advisor.

Current state: The cleaner who was sent by the building company removed all the visible mold from my unit, though they only wiped it off surfaces, and didn't check under the carpet etc. The carpet in that area is still damp. I put a dehumidifier and an air purifier in there, though the dehumidifier is pulling up about the same amount of water each day.

Short term ask: San Francisco is going to be in a 'shelter in place' situation for a while longer, so we cannot leave. I therefore need to fix this as quick as possible, even if I pay myself. I don't want to risk health issues due to the mold that has been growing about 10 feet away from my bed, and 5 feet from my desk. I therefore want to identify whether there are affordable solutions that reduce the health risk to me.

(added additional photos and illustrations below)

Floor plan showing mold

Examples of the mold I found in the room

Ollie
  • 143
  • 1
  • 6
  • 7
    I've seen a similar case, it was due to builders forgetting to put insulation in one spot of the exterior wall, causing moisture to condense there. Builder fixed it without charge (they have 10 year liability here by law). – jpa Apr 27 '20 at 15:29
  • 2
    You can kill the mold on the items of clothing by washing them at high temperature and/or using rubbing alcohol to clean away the mold. Bleach also works miracles but will damage the items. You can use bleach to remove mold front the closet being careful not to damage paint if any. – JoErNanO Apr 27 '20 at 20:21
  • 1
    Seems a little odd in San Francisco, as it is not an exceptionally cold climate. But I suppose the humidity is high at times, and that can be a factor. But the usual cause is condensation (from moisture in the inside air) collecting on the cold (and probably inadequately insulated) wall. Though it could also be due to some sort of ventilation problem. – Hot Licks Apr 27 '20 at 22:04
  • Condominium. Need to contact the 'association'. The builders have an obligation to pay for w/e after the association sues them. Or if the representative gets them to make a deal. If that's you, this has nothing to do with DiY yet. Once that's out of the way, and you're captain of the entire ship, we can progress. Otherwise all of this will get hired out. – Mazura Apr 28 '20 at 23:20
  • There's a stack or a wet wall that has a leak, or the entire exterior of the building needs to be inspected. That is beyond any one home owner, and *you* should do nothing (except clean at it) until the root of the problem is addressed, which requires all of you on board. – Mazura Apr 28 '20 at 23:24

4 Answers4

23

First of all, you should probably contact a mold abatement contractor. Not only should they be able to remove the existing mold, they should be able to identify its cause as well.

Then you may need to consult an attorney since from what you've said, this doesn't seem to be a one-shot deal in your unit but a systemic problem likely due to defective materials and/or workmanship. So the builder may be liable and the city, who presumably inspected this work, may be liable too.

But it certainly doesn't sound like a DIY project. Note also that it may not be safe for you to continue to live there until it's resolved. I'd take the advice of the mold contractor on that.

jwh20
  • 23,250
  • 2
  • 32
  • 65
9

What should I do immediately about the mold? I'm worried about breathing in the mold, and unsure of whether I should try and save the items of clothing that have mold on them.

There's a couple of things about mold to consider.

Mold needs moisture to grow. The first step in any mold problem is to identify where the water is coming from. If it's an outside wall, it could be as simple as the wall has a draft that allows cooler air to penetrate the wall and condense moisture. It could be as complex as an undetected water leak inside the wall. You need to know what's going on with that first, as simply removing the mold won't stop the mold from recurring. This may entail opening the wall up to figure this out. Any good mold remediator will probably do that anyways.

As far as health goes, most mold is of the grey variety. Black mold is the nasty stuff, but it's also pickier about environments. Most grey mold will grow anywhere that is damp, but black mold likes it wet all the time. If you have had someone look at the mold, what you might want to do is remove everything with mold and clean it with either bleach or a mold-killing cleaner. Mold likes to grow where it has material to feed on (like clothing). Because this is a closet, it's unlikely to have any serious impacts in your health (unless it's black mold). Regular mold is mostly a lung irritant. Leave the door closed and you should contain most of the problem.

What should I do in the medium-term? Do the builders have an obligation to address the root cause of the issue, and/or pay for damaged items?

If this is new construction, and there is a building fault causing this (leak or poor insulation) then the builder is likely liable (consult a lawyer to know what California law says, or ask on Law.SE). Most states have laws to protect buyers against immediate problems after new construction. Most likely they would have to pay for mold remediation, as well as any repairs (like I said, you will probably have to cut drywall out to find the source).

Machavity
  • 24,720
  • 7
  • 42
  • 93
  • Assuming you've had it looked at and are staying there, once you've removed the mould it may be a good idea to dehumidify the closet and use it for less perishable stuff. I lost an expensive coat to a similar issue in a rented house many years ago - the mould stains just wouldn't come out. – Chris H Apr 28 '20 at 08:09
1

Focusing on immediate remedies here which bridge and mitigate the issue until the probably underlying construction defect is fixed.

The main reason for mold is condensation inside, usually on badly insulated outside walls in badly ventilated places (behind furniture, or in your closet).

The mold buildup can be prevented by the following measures:

  • Increasing the wall's inside temperature, which is what the constructor must do by improving the insulation.
  • Decreasing the humidity of the air inside. Absolute humidity of the inside air is usually higher than that of the outside air because human activities like breathing, sweating, cooking and drying clothes add moisture to the air. The relative humidity is often low especially when a room is heated; but the air next to a cold wall is cooled down below the dew point because cold air can carry less water vapor. Avoid the activities you can avoid, for example do not cook your beans for half a day on the stove. (But do continue breathing ;-).)
  • Improve ventilation of the area. This is a double-edged sword though because new inside air also transports new moisture to the molding area. Best would be to ventilate the closet with outside air which is drier in absolute terms. Sealing the closet door but providing some air exchange with the outside, e.g. through a vent, would be optimal.
  • Actively decrease the moisture of the inside air by airing the space out frequently. Ventilating will transport the moisture produced by human activities to the outside.
  • Use an anti moisture agent like DampRid in the closet. This is only a sensible measure if the air exchange with the rest of the apartment is reduced; otherwise air from the apartment will transport fresh moisture into the closet so that the agent is used up too quickly. If you access the closet frequently it won't work well. I would also try to seal the closet door(s) as well as possible.
  • UV light kills germs, including fungi and their spores. You can install a UV light source in the closet and run it for some time every day. Of course it only works if it can reach the moist places. UV light damages colors and materials over time, so shield delicate items from the light (a plastic foil, even transparent, should suffice).
1

First, since it is new construction, you shouldn't need to DIY it.

Second, there can be many causes of mold, but you need a source of moisture and generally temperatures over 80F.

CAUSES

Missing vapor barrier (and probably insulation) - especially if overhang is <2ft.

  • common in corners of buildings that use external foamboard insulation as a sheathing, but plywood on corners to meet code - if its in a corner, it may be the culprit. If you were air conditioning the space it should stay cool enough to minimize mold growth even with the closet door shut as long as there was some insulation.
  • improperly positioned sprinkler systems can exacerbate this problem

Roof leak anywhere on that corner half of the house

  • Roof leaks around ridges and valleys can run along rafters and ventilation to end up far away from the source making them difficult to track down.

Vent from dryer or bathroom not fully exhausted outside - allowing warm damp air to condense in the floor/ceiling/wall cavities.

  • sometimes a builder will leave the exhaust duct in the ceiling, intending to connect it later, but forget or it just gets disconnected.

Slow water leak or bad tiling.

  • If a shower or other water source is on the other side of the wall it is possible that a water pipe or drain pipe is leaking. Its also possible that the tile in a shower was placed on an inappropriate base that allows water to permeate.

Below grade ground water seepage

  • if it is in a basement, the water barrier(s) may be broken (or nonexistent) but is less likely to grow mold that quickly

QUICK FIX

Take pictures/video for documentation.

Add Borax to bleach (bleach only works on the surface) to clean off the mold.

Keep the door open with air circulation to allow moisture to dry out and the temperature to be low enough to inhibit mold growth (<80F for most molds).

Contact builder to arrange warranty repairs. If they don't respond in a timely manner, ask them where to send legal documents.

technosaurus
  • 141
  • 3