Suppose the path-avoiding snail walks along the grid according to the following algorithm:
- At each step, the snail steps unit distance if doing so will not collide with its trail.
- If a step of unit distance will collide with the trail, the snail moves half way toward the trail.
- After each step, the snail turns right or left or remains straight.
Let $a(n)$ be the minimal number of steps required before the snail can have a step size of $(2n-1)/2^k$ for some $k$ such that the fraction is reduced.
Here are a few examples of minimal walks (solved by brute force):
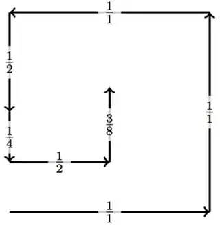
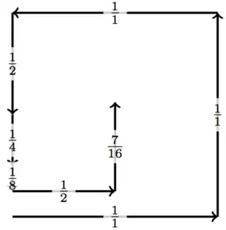
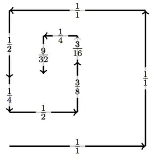
This shows that you can have a step size with numerator $3$ in $7$ steps, numerator $5$ in $9$ steps, numerator $7$ in $8$ steps, and numerator $9$ in 10 steps—therefore $a(2) = 7$, $a(3) = 9$, $a(4) = 8$ and $a(5) = 10$.
Is there a general strategy of determining $a(n)$?
Also, given a random walk (where the turns are chosen uniformly at random) what is the expected number of steps before the snail takes a step of $(2n-1)/2^k$ for some $k$?
Known values (assuming the implementation is correct):
a(2) = 7 a(9) = 11 a(16) = 10 a(23) = 12 a(30) = 13
a(3) = 9 a(10) = 12 a(17) = 12 a(24) = 13 a(31) = 12
a(4) = 8 a(11) = 11 a(18) = 13 a(25) = 12 a(32) = 11
a(5) = 10 a(12) = 12 a(19) = 14 a(26) = 13 a(33) = 13
a(6) = 11 a(13) = 11 a(20) = 13 a(27) = 14 a(34) = 14
a(7) = 10 a(14) = 12 a(21) = 13 a(28) = 13 a(35) > 14
a(8) = 9 a(15) = 11 a(22) = 14 a(29) = 12
Here are some walks for $n=20$, $n=21$, and $n=22$:
n = 20: (0,0)--(1,0)--(1,1)--(0,1)--(0,1/2)--(0,1/4)--(1/2,1/4)--(1/2,5/8)--(1/2,13/16)--(1/4,13/16)--(1/4,17/32)--(1/4,25/64)--(1/8,25/64)--(1/8,89/128)
n = 21: (0,0)--(1,0)--(1,1)--(0,1)--(0,1/2)--(0,1/4)--(1/2,1/4)--(1/2,1/8)--(3/4,1/8)--(3/4,9/16)--(3/4,25/32)--(3/4,57/64)--(3/8,57/64)--(3/8,73/128)
n = 22: (0,0)--(1,0)--(1,1)--(0,1)--(0,1/2)--(0,1/4)--(1/2,1/4)--(1/2,5/8)--(1/4,5/8)--(1/4,7/16)--(1/4,11/32)--(1/8,11/32)--(1/8,43/64)--(9/16,43/64)--(9/16,43/128)




