59

Is there any way to overlay some lines and dimensions on the document so that one can see where the margins end and more easily examine the overall layout and ratios of elements on the page?

See for example, some of the illustrations of frameworks in this article on the canons of page construction and this one on margins (which displays dimensions).

Village
  • 13,603
  • 23
  • 116
  • 219
  • 8
    Do you want to have the page layout measurements to overlaid with your document content (as opposed to a mock-up page with layout figures on them)? Only on a pre-specified page? If measurements are not that important to be displayed with the "lines", then \usepackage[showframe]{geometry} would suffice. – Werner Jan 26 '12 at 07:06

3 Answers3

74

Just to add another useful package that does it:

\usepackage[showframe]{geometry}

(as many people load geometry anyways, it is a nice gadget)

yo'
  • 51,322
54

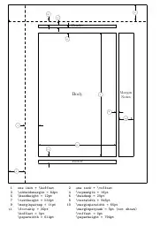
Use \layout form the layout package. This produces:

enter image description here

and prints the layout details on the bottom:

enter image description here

\documentclass{article}
\usepackage{layout}
\begin{document}\layout
\end{document}
Peter Grill
  • 223,288
44

If you just want the boundaries overlaid on the actual pages, independently of other packages,

\usepackage{showframe}